店舗事務所
いちご渋谷宇田川町ビル 2階
- 賃料
- 要相談
- 建物面積
- 188.76㎡/57.09坪
- 坪単価
- 要相談
- 所在地
- 東京都渋谷区宇田川町10-2
- 交通
-
- 山手線「渋谷」駅 徒歩7分
- 京王井の頭線「神泉」駅 徒歩7分
- 東急東横線「渋谷」駅 徒歩7分
| 美容室 | ○ | 重飲食 | ○ | 軽飲食 | ○ |
|---|---|---|---|---|---|
| 物販 | ○ | サービス | ○ | 事務所・SOHO | ○ |
PHOTO GALLERY フォトギャラリー
【外観】
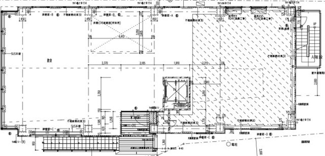
【間取り】
好立地な物件です♪
契約年数等諸条件相談です。
お気軽にお問い合わせください。
03-6868-8517
営業時間:10:00~19:00
定休日:土、日、祝
物件概要 【店舗事務所】 物件番号:98488104 情報更新日:2025年11月14日 次回更新予定日:2025年11月28日
情報の見方| 所在地 | 東京都渋谷区宇田川町10-2 | 所在階 | 2階 | ||
|---|---|---|---|---|---|
| 交通 | |||||
| 間取り/詳細 | - | 面積(坪数) | 188.76㎡(57.09坪) | ||
| 賃料 | 要相談 | 管理費・共益費 | - | ||
| 敷金・保証金/礼金 | 要相談 /0ヶ月 | 償却/敷引 | -/- | ||
| 更新料 | - | 駐車場/月額料金 | -/- | ||
| 保険加入/料金 | 有/- | 保証会社 | - | ||
| 築年月(築年数) | 2016年 3月 (築9年) | 契約期間 | 定期借家 99年 | ||
| 種別 | 店舗事務所 | 規模構造 | 鉄骨造/2階建 | ||
| 現況/引渡時期 | 賃貸中/2026年03月下旬予定 | 取引態様 | 代理 | ||
| 物件番号 | 98488104 | ||||
| 設備条件 |
|
||||
| 取扱会社 |
|
||||
地図
03-6868-8517
営業時間:10:00~19:00
定休日:土、日、祝

CONTACT